Wohnung zu Verkauf in Catanzaro

Catanzaro (Catanzaro Lido) - VIA ANNA BONA BARBIERI
184.000 €
Objekt-Nr.:LM920
Hauptmerkmale
88
6
Räume
3
die Zimmer
2
Badezimmer
Beschreibung
Eigenschaften
Objekt-Nr.:
LM920
Gemeinde:
Catanzaro (Catanzaro Lido)
Kategorie:
Wohnung
Räume:
6
die Zimmer:
3
Badezimmer:
2
qm:
88
Parkplätze:
1
Balkone:
2
qm Balkon:
12
Etage:
1
Jahr:
2026
Energieklasse:
A
Zustand Immobilie:
im Bau befindlich
Lage:
Meer
Ausblick:
freie Sicht
Ausrichtung:
Osten Süden Westen
Freie Seiten:
1
Tür/Fensterrahmen:
PVC doppelverglast
Rollläden:
PVC
Wärmedämmung:
Außendämmung
die Zubehöre
Klimaanlage
Aufzug
der Lageplan
Catanzaro (Catanzaro Lido) - VIA ANNA BONA BARBIERI
Bitte aktivieren Sie Cookies und laden Sie die Seite neu, um den Inhalt anzuzeigen.
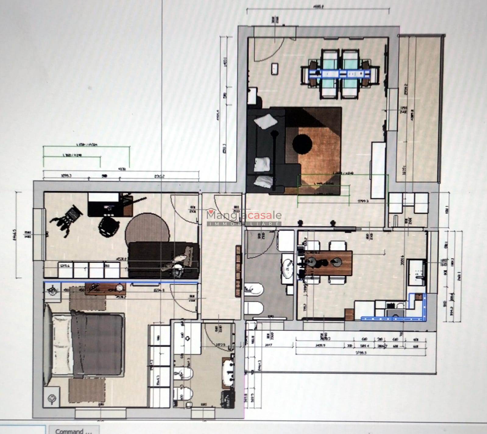
Grundrisse
Besuchen Sie die Anzeige auf Ihrem Telefon
QR Code
Möchten Sie weitere Details?
Cookie preference