Description
Annonce LM030 : Villa Individuelle de Nouvelle Construction à Catanzaro Lido
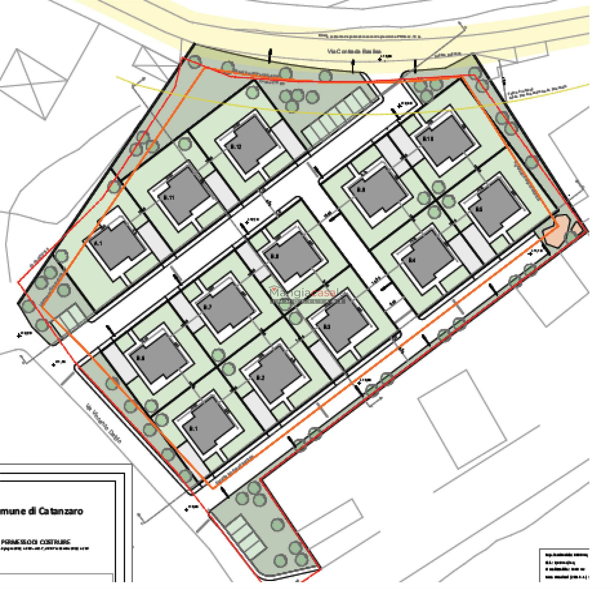
À Bellino, à quelques pas du centre commercial Le Fontane et de la mer, nous proposons à la vente une villa individuelle de nouvelle construction d'environ 95 mètres carrés commerciaux, disposée sur un seul niveau. La propriété est complétée par un porche d'environ 20 mètres carrés, une terrasse de 95 mètres carrés et environ 300 mètres carrés de jardin privé.
Les espaces intérieurs sont bien répartis, avec un salon confortable avec cuisine ouverte et accès direct au porche couvert, une chambre principale avec salle de bains privative, deux chambres simples et une salle de bains principale.
Il est possible de personnaliser les intérieurs selon vos préférences. La villa est une solution idéale pour ceux qui recherchent une maison indépendante, à quelques pas de la mer et du centre commercial.
Contactez-nous pour plus de détails et pour organiser une visite !